Plan Maison 3d Logiciel Gratuit Pour Dessiner Ses Plans 3d
Plan Maison 3d Logiciel Gratuit Pour Dessiner Ses Plans 3d
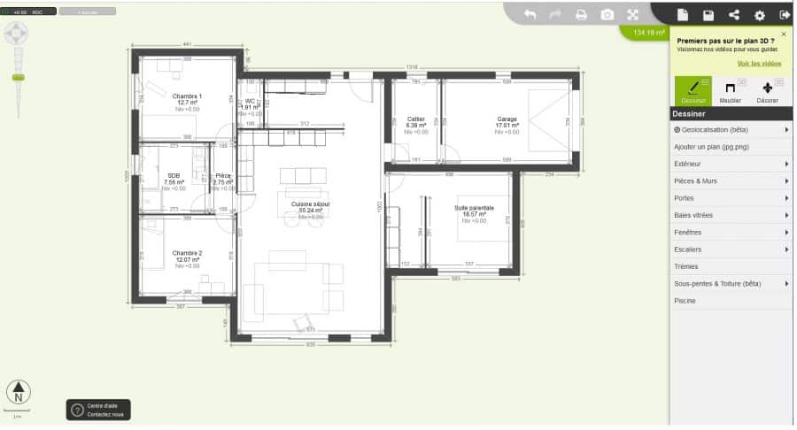
Presentation Du Logiciel De Plans De Maison En Ligne Kozikaza
Plan Maison 3d Logiciel Gratuit Pour Dessiner Ses Plans 3d
Presentation Du Logiciel De Plans De Maison En Ligne Kozikaza
Kozikaza Plan 3d Telecharger Gratuitement La Derniere Version
Kozi Kaza Outil De Creation De Plan 3d En Ligne Dessiner Ses
Top 5 Des Logiciels D Architecture 3d
Tutoriel Creer Et Organiser Ses Pieces Plan 3d Kozikaza Youtube
Un Outil De Plan 3d Pour Dessiner Facilement Vos Plans De Maison
6 Logiciels Gratuits Pour Son Plan De Maison 5 Configurateurs De
Tutoriel Sous Sol Et Mezzanine Plan 3d Kozikaza Youtube
Meilleurs Logiciels D Architecture 3d Gratuits Et Payants Professionnels
Logiciel De Construction De Maison En 3d Gratuit Frais Presentation
4 Logiciels Plan Maison Gratuits Faciles A Utiliser
Meilleurs Logiciels D Architecture 3d Gratuits Et Payants Professionnels
Plan Maison 3d Moderne New Image De Maison En 3d Maison 3d Kozikaza
Creer Sa Maison En 3d Frais Presentation Du Nouveau Plan 3d Kozikaza
Presentation Du Logiciel De Plans De Maison En Ligne Kozikaza
Faire Le Plan 3d De Sa Maison Avec Kazaplan Par Kozikaza Youtube
Architecture Et Decoration 3d Les Meilleurs Logiciels Gratuits Ou
Logiciel D Architecture La Selection Des 10 Meilleurs Outils 2d Et
4 Logiciels Plan Maison Gratuits Faciles A Utiliser
Test De Kozikaza Pour Dessiner Des Plans De Maison
Plan Maison 3d Logiciel Gratuit Pour Dessiner Ses Plans 3d Art
Meilleurs Logiciels D Architecture 3d Gratuits Et Payants Professionnels
Start Up Le Plan 3d De Kozikaza Seduit Les Marques De Deco
Plans De Maison En 3d Construire Avec Maisons D En Flandre
Demarrer Un Nouveau Plan 3d En Important Des Murs Depuis Mon Adresse
Plan Maison 3d Moderne New Image De Maison En 3d Maison 3d Kozikaza
Logiciel Plans 3d Fabulous Kozikaza Un Logiciel Plan Maison D
Logiciel Plans De Maison Onestopcolorado Com
Vos Avis Sur Notre Plan De Maison 224 Messages Page 9
Photo Ou 3d Apres Un Gros Travail De R D Les Rendus Hd Arrivent
Logiciel Gratuit Pour Faire Des Plans De Maison Quel D Architecture
Logiciel D Architecture La Selection Des 10 Meilleurs Outils 2d Et
Kozikaza Plan 2d Kozikasa Logiciel Plan De Maison 3d Creer Plan Maison
Kozikaza Plan Kozikaza Plan 2d
Plan Maison 100m2 3d Tranquille Kozikaza Plan 3d
Telechargement Gratuit Logiciel De Plan De Construction 3d
Kozikaza Wanaplan Primaire Plan Maison 3d Logiciel Gratuit Pour
Kozikaza 3d Mindbodyandsoulportal Info
Logiciel Architecture 3d Gratuit En Ligne Unique Plan Architecte 3d
Faire Des Plans En 3 D En Ligne Stephanie Bricole
Quel Logiciel De Plans 3d De Maison Choisir House In Progress
Kozikaza Plan De Maison Elegant Plan De Maison
Kozikaza La Modelisation D Interieur Pour Les Novices La Petite
Pr Sentation Du Nouveau Plan 3d Kozikaza Youtube Logiciel De
Presentation Du Logiciel De Plans De Maison En Ligne Kozikaza
Logiciel Plans De Maison Onestopcolorado Com
Kozikaza Logiciel Fabulous Logiciel Plan Maison Gratuit D Logiciel
Maison 3d Logiciel Kozikaza Logiciel Construction Maison 3d Facile
Plan Cuisine 3d Kozikaza Plan De Ma Maison En 3d Gratuit Logiciel
Kozikaza Plan 2d Kozikasa Logiciel Plan De Maison 3d Creer Plan Maison
Kozikaza Plan 2d Kozikaza Logiciel
Top 5 Des Logiciels D Architecture 3d
Kozikaza Plan 2d Toit Plat Kozikaza
Toit Plat Kozikaza Plan Maison Le Masson Toit Plat Awesome Plan De
Logiciel Architecture Professionnel Gratuit Frais Plan Architecte 3d
Creer Sa Maison 3d Gratuit Frais Presentation Du Nouveau Plan 3d
Plan Maison 3d Kozikaza Plan Maison Avec Plan Maison 3d Kozikaza 4
Logiciel Plan Appartement 3d Logiciel Gratuit Plan Appartement Sb
Logiciel Gratuit Creez Vos Plans Maison En 3d Kozikaza Youtube
Logiciel Plan Exterieur Maison 3d Gratuit Plus Nouveau Logiciel
L Gant Maison Plan 3d Kozikaza Faire Newsindo Co The Baltic Post
Sites Utiles Pour Construire Renover Et Decorer Votre Maison
Kozikaza Com Analytics Market Share Stats Traffic Ranking
Presentation Du Logiciel De Plans De Maison En Ligne Kozikaza
Logiciel Plan Maison Kozikaza Archives Www Otelbegen Com
Vos Avis Sur Notre Plan De Maison 224 Messages Page 9
Dessiner Plan Maison 3d 2 Belle 50 Logiciel Plan De Maison 3d
Creer Une Chambre En 3d Capturnight
Grand Faire Plan Maison 3d Kaigyo Bible Com Kozikaza Newsindo Of En
Creation Plans Amenagement Et Decoration Avec Le Site Kozikaza
Kozikaza Wanaplan Primaire Plan Maison 3d Logiciel Gratuit Pour
Toit Plat Kozikaza Facade Gris Souris G30 Unixpaint
Logiciel Pour Plan En 3d Agencer Sa Maison Avec Plan Maison D
Kozikaza Logiciel Fabulous Logiciel Plan Maison Gratuit D Logiciel
Telecharger Kozikaza Plan 3d Gratuit Good Plan Maison Interieur D
Logiciel Conception Maison Gratuit Creer Plan Maison 3d Logiciel
Logiciel Maison 3d Gratuit Kozikaza Plan 3d Logiciels Maison 3d Avec
Kozikaza Plan Kozikaza Plan 2d
Test De Kozikaza Pour Dessiner Des Plans De Maison
Un Outil De Plan 3d Pour Dessiner Facilement Vos Plans De Maison
L Gant Maison Plan 3d Kozikaza Faire Newsindo Co The Baltic Post
Plan Maison 3d Kozikaza Plan Maison Avec Plan Maison 3d Kozikaza 4
Telecharger Kozikaza Pour Windows Telechargement Gratuit
Toit Plat Kozikaza Facade Gris Souris G30 Unixpaint
Faire Des Plans 3d Facilement Avec Kozikaza Vraiment Tout Essaye
Quel Logiciel De Plans 3d De Maison Choisir House In Progress



